ANNO DI REALIZZAZIONE : 2003 – 2007
COMMITTENTE: Arcidiocesi di Torino – Curia Arcivescovile
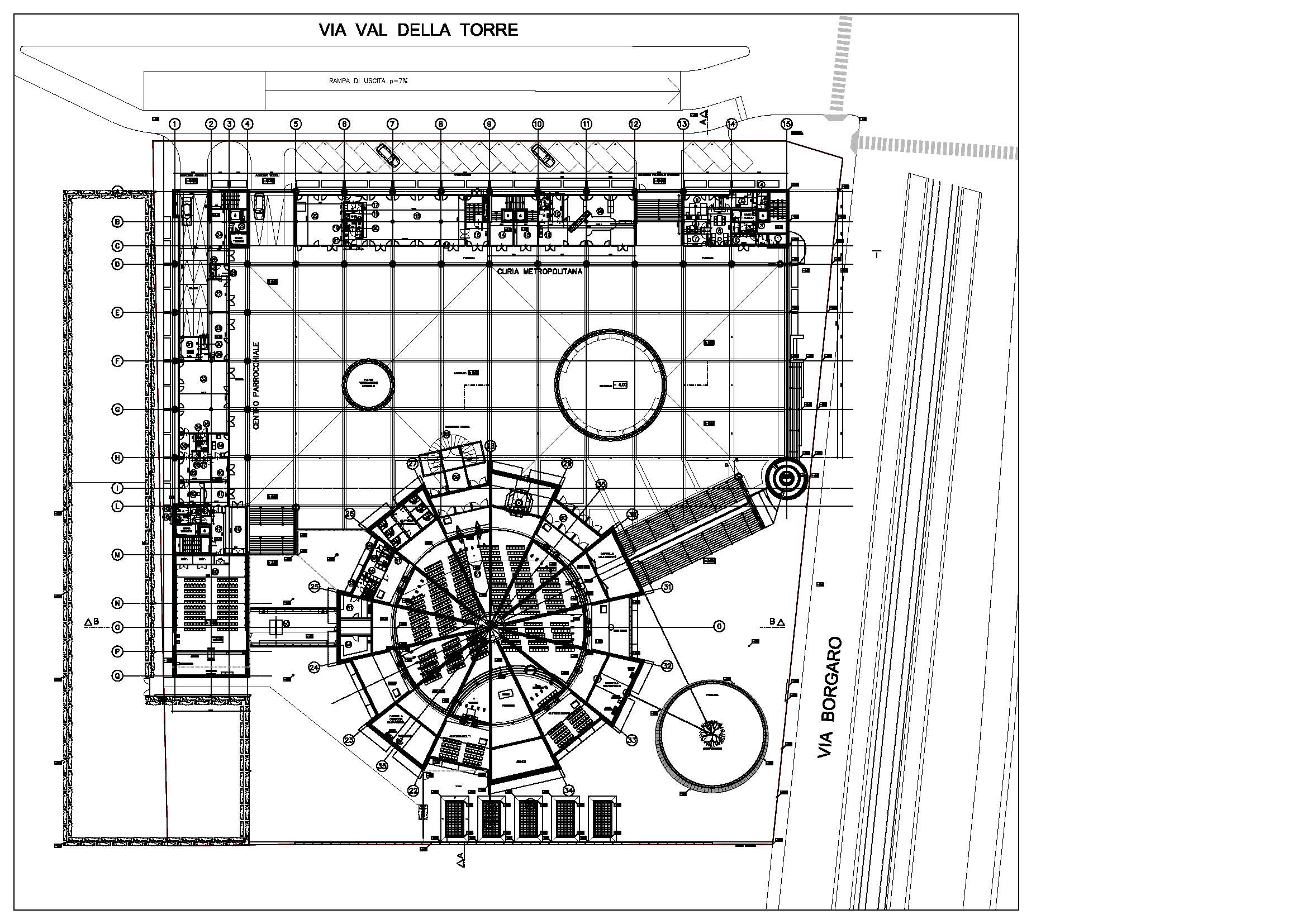
ARCHITETTO: Mario Botta
IMPORTO LAVORI: € 38.213.195,00
SETTORE: Sport e Cultura
OGGETTO DELL’INCARICO: Progettazione preliminare, Progettazione definitiva, Progettazione esecutiva, Coordinamento alla sicurezza in fase di progettazione, Coordinamento alla sicurezza in fase di esecuzione, Direzione lavori, Contabilità lavori, Collaudo statico.






